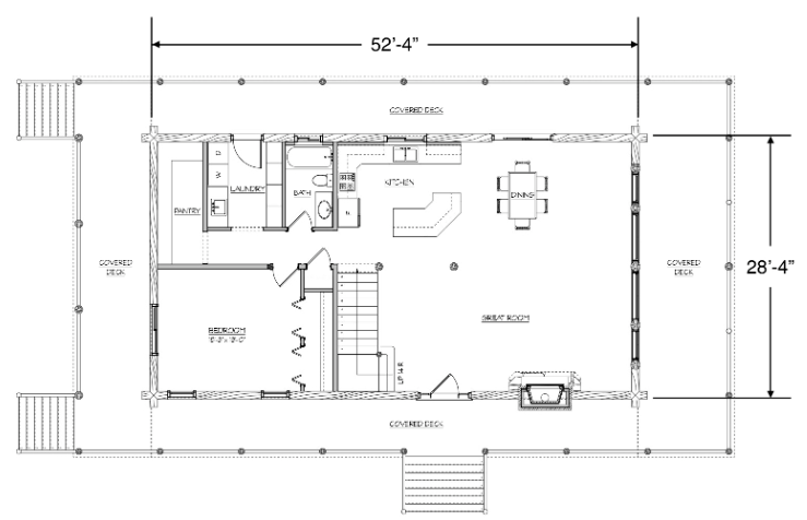
Laramie Floor Plan

Check out our premium package for this log home kit or customize it the way you want. The Laramie floor plan is a modest log home with the right amount of space.

3 Beds

3 Baths

3 Floors

3,640 SF

Floor Plan Design

Floor Plan Design

Some main features of the Laramie floor plan are:

- Large pantry

- Conjoined kitchen, dining room, and great room

- Walk-in closets

- Covered wrap-around deck

Contact Us

Fill out the form below to learn more about our log cabin kits and custom packages!